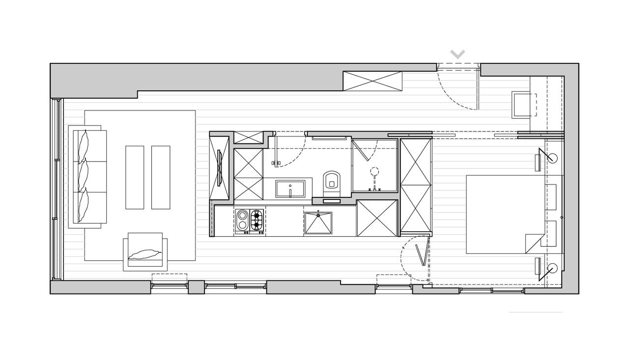
The refurbishment of this 40 square meter (430 sq. ft.) apartment in Tel-Aviv, Israel transformed a studio apartment into a functional one bedroom apartment.
Designed by Sfaro Architects, the kitchen, bathroom and storage space are concentrated in the middle with a 360 degree circulation around the apartment.
This floor plan makes the apartment looks much bigger than it actually is and provides a sense of a multifunctional space.
Architect: Sfaro








ConversionConversion EmoticonEmoticon